
Hockey & Football Pavilion
New combined hockey and football pavilion with community gym
A new multi-disciplinary sports pavilion for Hockey and Football in the Thames Valley.
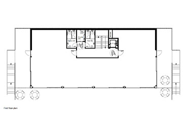
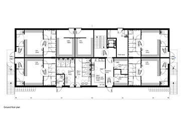
The pavilion will have four changing rooms and two additional pre-match meeting rooms. On the first floor is a flexible club room which can be used as a whole as a shared space, or divided into two spaces, one for each club, to give them ultimate flexibility and control to decide how to use their space.
In addition the building includes a community gym facility which could include specific support for local rowing clubs as well as the two sports clubs housed on the site.
RIBA Chartered Practice