
New Cricket Pavilion
New pavilion and indoor cricket school, Oxfordshire
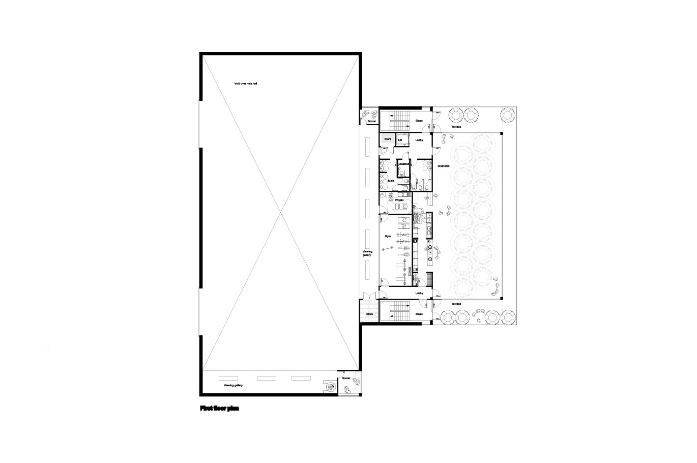
This new 6-changing room pavilion will serve two high-quality pitches and a new indoor cricket school which is integral to the scheme.
A largely glazed clubroom at first-floor level will look out on three elevations over the two pitches and spectacular views over the Chilterns escarpment.
Designed to be clad in un-finished timber cladding, the main part of the building is designed to gradually weather into its background of mature trees. The palate of materials also includes glass balustrading and dark grey roof, windows and doors.
Architectural visualisation by Tulin Aydiner; tulinaydiner@gmail.com
.jpg?crc=4077120578) 
       .jpg?crc=3954864771) 
        
        
       .jpg?crc=309739136) 
       .jpg?crc=96199043) 
        
       RIBA Chartered Practice
 
      
    
   