
Two New Houses
Small development of two new houses, Oxfordshire
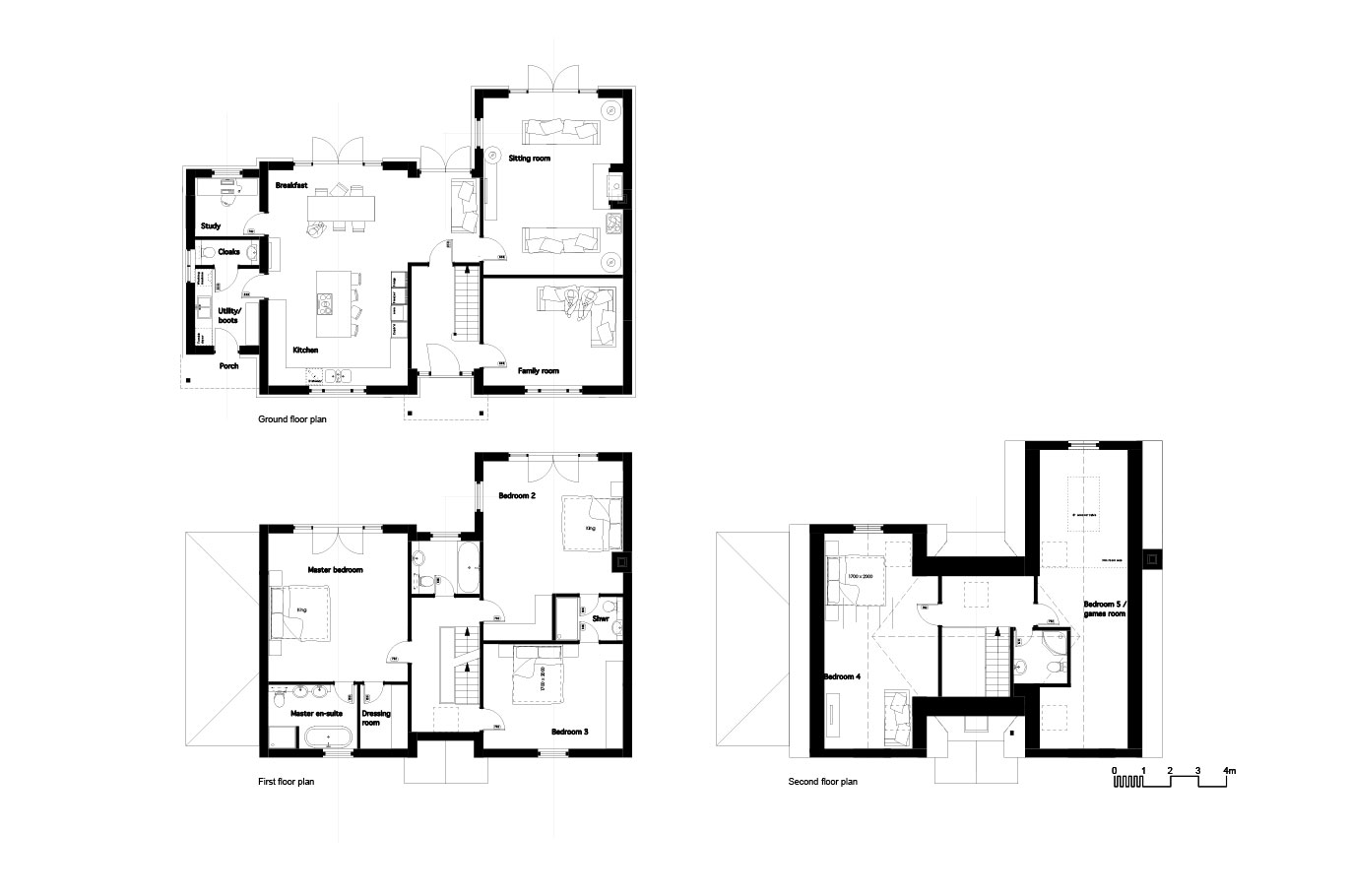
This pair of houses has been designed for one of our small developer clients. The scheme, which is on a site in a rural location, has been carefully designed to reflect the form and materials of local Oxfordshire building traditions.
Architectural visualisation by 3D Design Bureau, www.3ddesignbureau.com
RIBA Chartered Practice