New combined hockey and football pavilion with community gym
A new multi-disciplinary sports pavilion for Hockey and Football in the Thames Valley.
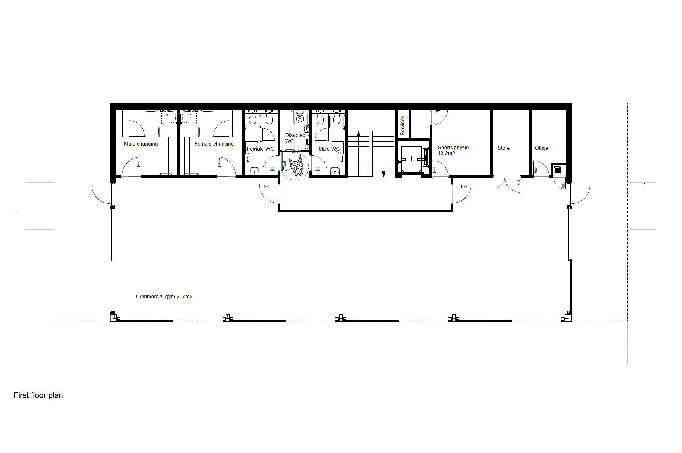
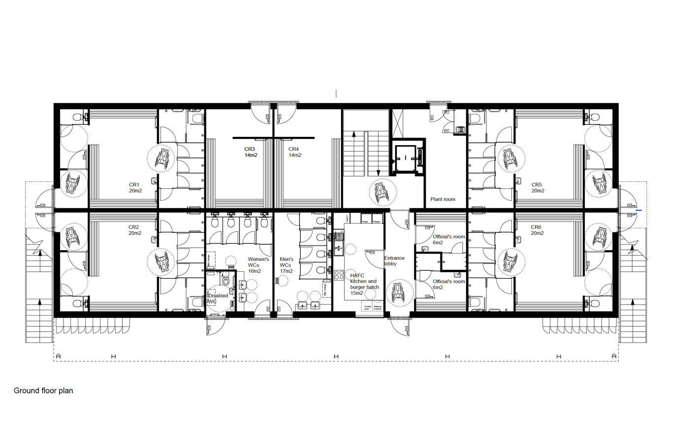
The pavilion will have four changing rooms and two additional pre-match meeting rooms. On the first floor is a flexible club room which can be used as a whole as a shared space, or divided into two spaces, one for each club, to give them ultimate flexibility and control to decide how to use their space.
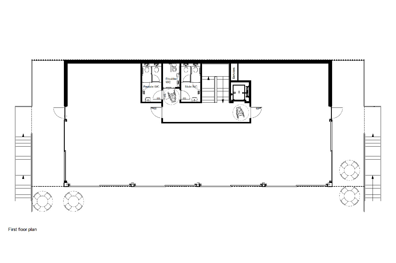
In addition the building includes a community gym facility which could include specific support for local rowing clubs as well as the two sports clubs housed on the site.
Hockey & Football Pavilion . . .
T: 01491 613020
studio@purplearchitects.com
Home
Portfolio
Conservation
Granite Cottage, Lamorna
Contemporary Extension
Listed House, Henley
Listed House, Watlington
Listed Manor House
Listed Tudor Cottage
New Homes
Flatted Developments
Large Flatted Development
New House
New Houses
The Cow Shed
New Villa Mallorca
Small Residential
Remodelling of a House
Remodelling & Extension
Refurbishment & Extension
Oak-Framed Extension
Internal Modifications
House Extension
Sport & Leisure
New Hockey Pavilion
Barn Conversion
Recreation Ground
New Cricket Pavilion
Sports & Leisure
Hockey & Football Pavilion
People
Testimonials
Latest
Contact
RIBA Chartered Practice