Small Residential
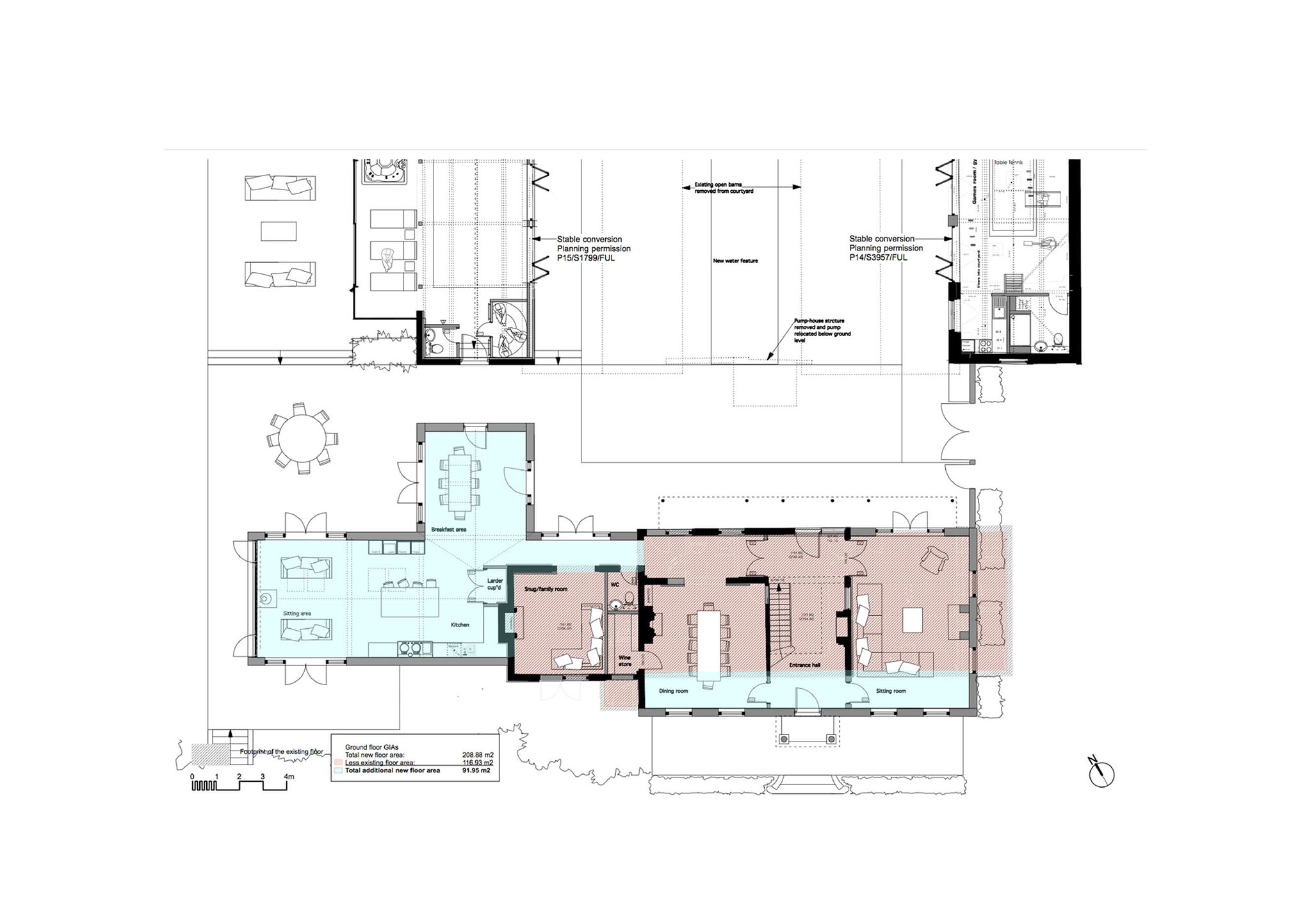
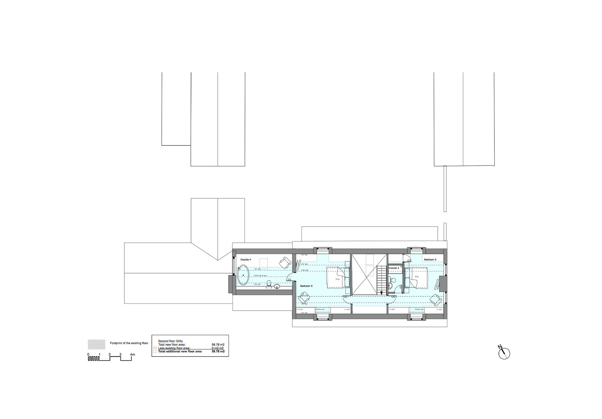
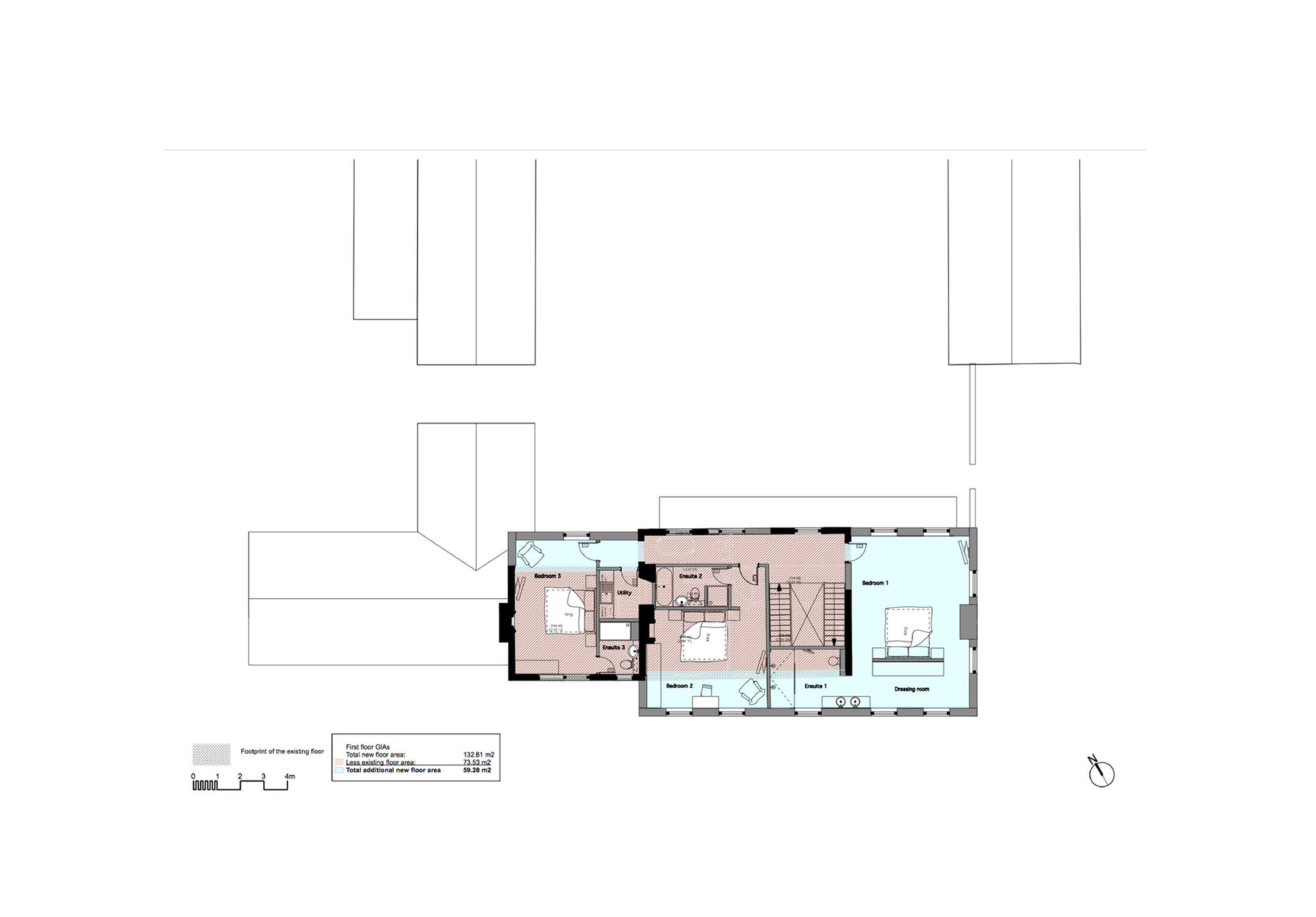
The complete remodelling and extension of an existing farmhouse which forms part of a courtyard of converted farm buildings, to create a very elegant three-storey Georgian-style property in Oxfordshire.
Remodelling and Extension . . .
T: 01491 613020
studio@purplearchitects.com
RIBA Chartered Practice