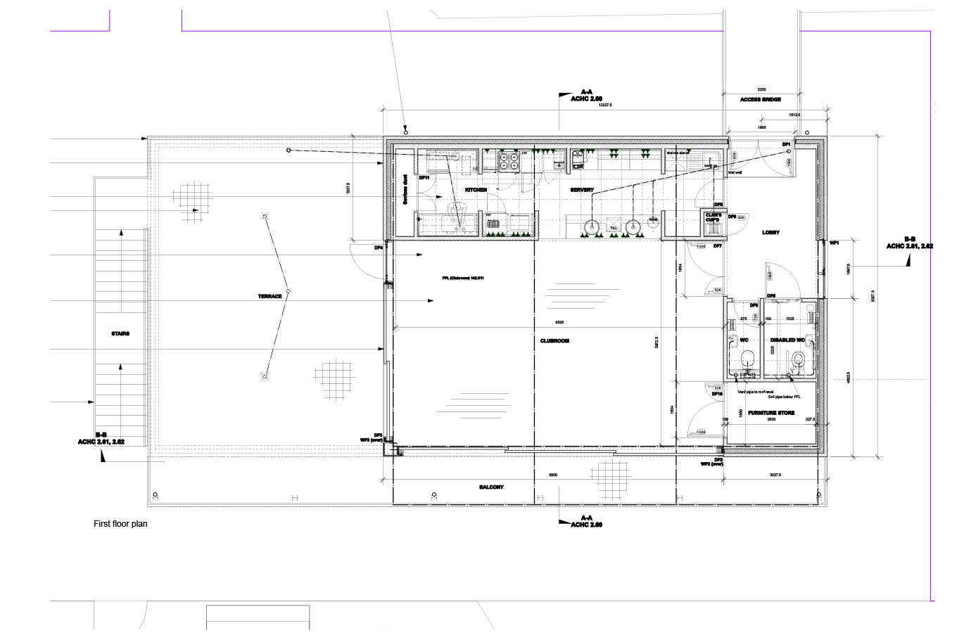
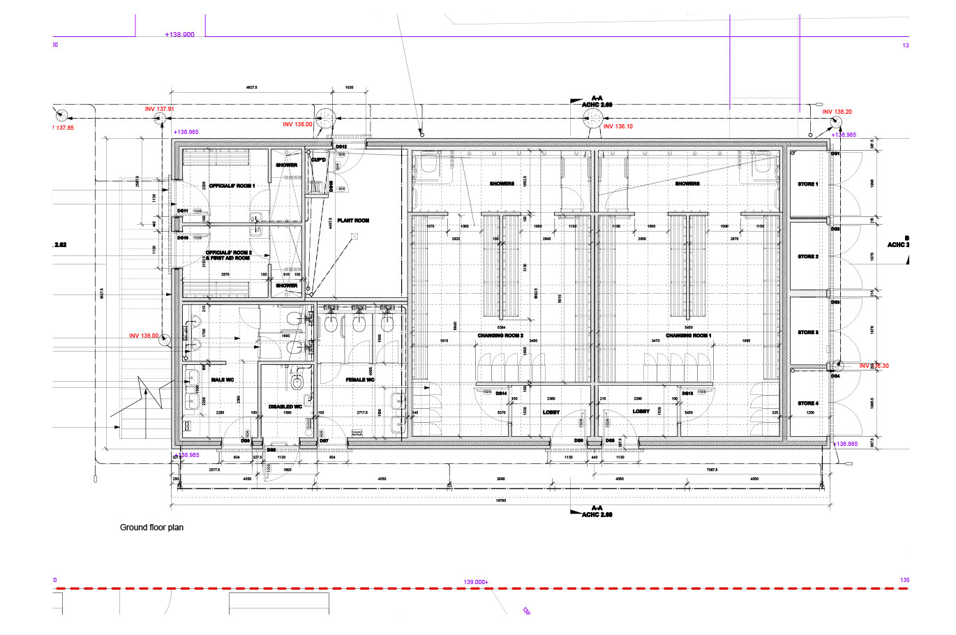
New hockey club pavilion, Buckinghamshire
This new-build pavilion will provide changing rooms and washroom facilities on the ground floor, and a clubroom on the first floor with a terrace overlooking a new artificial Hockey pitch and magnificent views over countryside beyond.
A difference in levels on the site has enabled both storeys to be accessed by Part M-compliant ramps, and the building fully adheres to England Hockey and Sport England design standards.
The building is a simple but contemporary structure with a shallow metal mono-pitched roof, red-brick walls and large Schuco sliding doors in high-performance glass with dark grey-coloured frames.
It is due to be completed in time for the start of the 2017 hockey season.
New Hockey Pavilion . . .
T: 01491 613020
studio@purplearchitects.com
RIBA Chartered Practice